Nejkrásnější místo na zemi

Naši Samotu najdete mezi lesy, loukami a rybníky. Je tam jen ona a příroda. Její čisté, moderní a svobodné pojetí vás okouzlí. Novostavba s detaily původního statku nabízí ubytování až pro 58 lidí. Velkorysé společné prostory, kuchyň s barem a krásné pokoje doplňuje famózní dětská herna přes dvě patra. Snídejte na terase nad rybníkem, děti nechte běhat na zahradě plné dobrodružství a užívejte si pohodu v přírodě. Z Prahy a Budějovic jste u nás za hodinku. Z Brna a Plzně za dvě. Vítejte!

Pro vaše zážitky a pohodlí

Venkovní kuchyň

Steaky, hamburgery nebo špekáčky. Je jen na vás, co si venku připravíte. Prostírat můžete na velkorysém stole, na terase nad rybníkem nebo třeba u potoka na chlebu.

Opravdová samota

Lesy, louky, kopce, potoky a rybníky na pozemku i okolo. A pak už jenom vy a ti, se kterými jste nejraději. To je Hojšín a Česká Sibiř.

Hřiště bez hranic

Nechte děti běhat, válet sudy, skákat, pouštět lodičky, objevovat, trhat kytky… A když začne pršet, boty dolů a dovnitř. Čeká je herna přes dvě patra.

Výhled na rybník

Bez vody je sucho, bez vody je nuda. U nás můžete snít i pít na terase nad rybníkem a dětem přibalte holínky - zahradou protékají dva potoky.

Parkování přímo u domu

Dojít k nám pěšky by bylo složité a únavné... Pár kroků od Samoty pohodlně zaparkujete auto a klidně i autobus.

Odolný minimalismus

Naše pokoje něco vydrží. Nestavíme vázičky na kraj stolu ani schody uprostřed pokoje. Připravili jsme pro vás prostě nadčasový interiér bez kompromisů.

Novostavba s tradicí

Fasáda ze sibiřského modřínu, podlahové i stěnové vytápění, pálené bobrovky, Sonos, stoleté kamenné zdi, tepelné čerpadlo, špaletová okna, antiseptické vinylové podlahy, původní trámy…

Ať si vstávají v šest…

… vy mějte půlnoc. Všechny vaše děti můžou spát společně ve velkém pokoji plném postýlek. Ranní polštářová bitva vás nebude rušit.

Skočte do jezírka

Hned u terasy je přírodní koupací biotop, kde se po letním výletě osvěžíte nebo po večerech vypilujete svůj plavecký styl.

Objednáte si celý dům, jeden pokoj, nebo třeba posed?

Nové stavení

od 26.000 Kč / noc

Počet osob: 50 (z toho 18 dětských postelí)

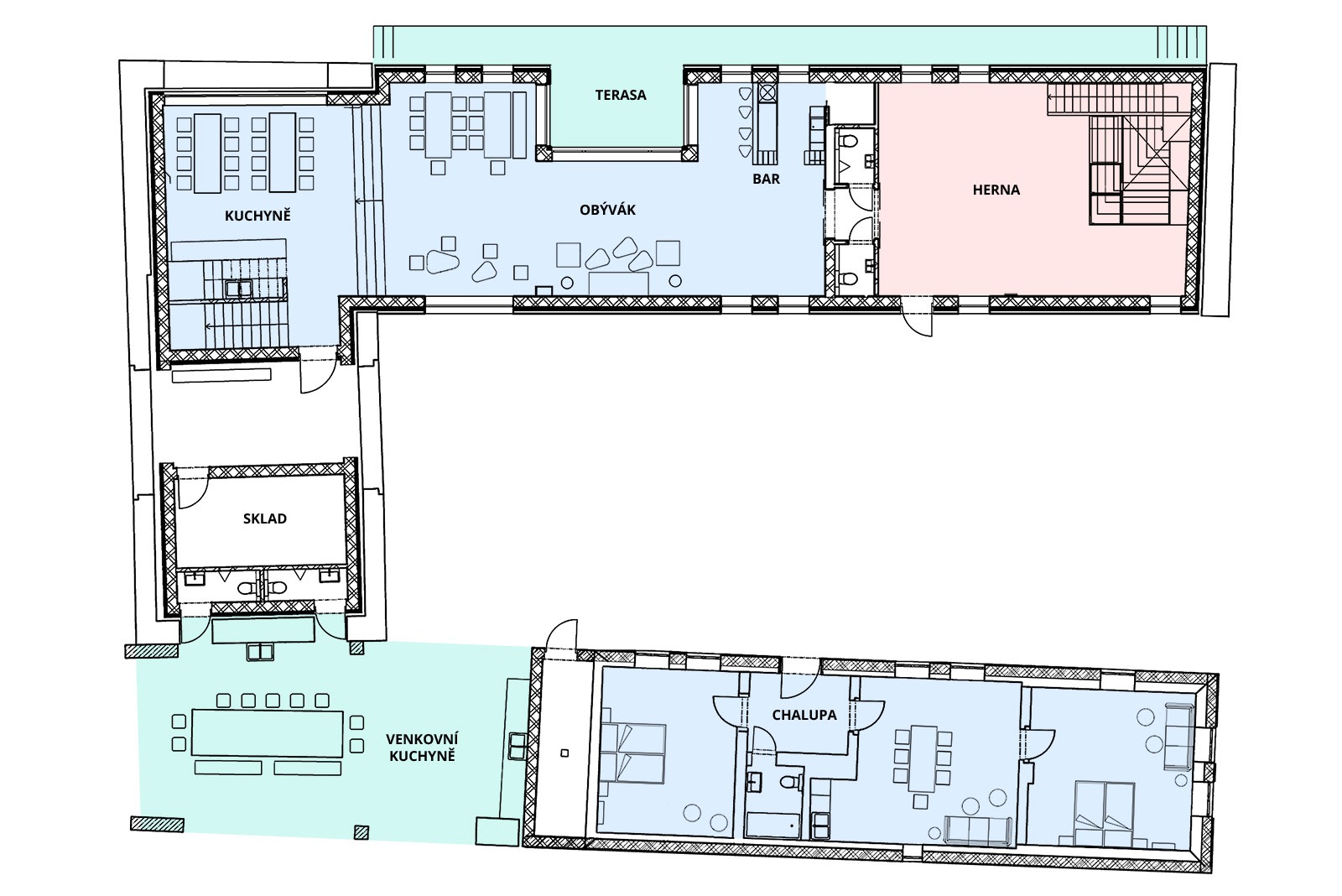
Sedm pokojů, koupelny a toalety, kompletní společné prostory s plně vybavenou vnitřní i venkovní kuchyní, jídelnou, barem, dětskou hernou a terasou. Jen vy uvidíte západ i východ slunce nad rybníky a loukami.

K dispozici: TV, audio systém Sonos, wi-fi, gril, louka, rybník, koupací jezírko, travnaté volejbalové hřiště, dětské hřiště

Velikost: 715 m2 (plocha interiéru)

Typ postelí: 6× manželská (180×200 cm)
2× pohovka pro dva (140×200 cm)
10× jednolůžko (90×200 cm)
8× samostatná matrace (80/90x 200 cm)
10× dětská (80×160 cm)
8× dětská (60×120 cm)

více

Chalupa

od 4.600 Kč / noc

Počet osob: 10 (z toho 2 dětské postele)

Samostatná chalupa s vlastním vchodem, kde budete cítit, že se zastavil čas. Velký pokoj s kuchyňskou linkou a rozkládací pohovkou, ložnice pro 2 osoby a ložnice pro 4 osoby. Slunce bude vycházet a zapadat jen pro vás nad lesem i loukou.

Příslušenství: koupelna se sprchou a WC, plně vybavená kuchyňská linka, 4 židle a stůl

K dispozici: společná plně zařízená venkovní kuchyně, wi-fi, gril, louka, rybník, koupací jezírko, travnaté volejbalové hřiště, dětské hřiště (společné prostory a herna v novém stavení nejsou součástí chalupy)

Velikost: 88 m2 (plocha interiéru)

Typ postele: 2× manželská (180×200 cm)
1× pohovka pro dva (140×200 cm)

1× pohovka pro dva (160×200 cm)

1× dětská palanda (2 lůžka 60x120cm)

více

Posed

od 2.500 Kč / noc

Počet osob: 4

Celoročně obyvatelný posed umístěný v olšovém háji nad potokem poskytuje jak daleké výhledy do krajiny, tak na třpytící se hvězdy. Vychytávky jako skládací postel pak umožňují v mžiku změnit spodní část posedu v taneční parket či romantickou jídelnu. Vyspí se tu i čtyřčlenná rodina, ale nejvíc si posed určitě užijete v páru.

Příslušenství: mini koupelna ve formě stylového umyvadla, nádrž s vodou, výkonná kamínka, elektrika na svícení a dobíjení, sezení v panoramatickém okně, tyč na sušení oblečení

K dispozici: ohniště, louka, rybník, koupací jezírko, travnaté volejbalové hřiště, dětské hřiště, kadibudka

Velikost: 7,5 m2 (plocha interiéru)

Typ postele: 1× manželská (160×200 cm)
1× výklopná manželská (160×200 cm)

více

Celá Samota

od 32.000 Kč / noc

Počet osob: 64 (z toho 20 dětských postelí)

Dostanete všechno, co na Samotě máme. Celé stavení, chalupu, posed, saunu a kompletní společné prostory s plně zařízenou vnitřní i venkovní kuchyní, jídelnou, barem, dětskou hernou a terasou. A slunce bude vstávat a chodit spát jen s vámi.

K dispozici: TV, audio systém Sonos, wi-fi, gril, louka, rybník, koupací jezírko, travnaté volejbalové hřiště, dětské hřiště

Velikost: 800 m2 (plocha interiéru)

Typ postele: 8× manželská (180×200 cm)
2× manželská (160×200 cm)
3× pohovka pro dva (140×200 cm)
1× pohovka pro dva (160×200 cm)
10× jednolůžko (90×200 cm)
8× samostatná matrace (80/90x 200 cm)
10× dětská (80×160 cm)
10× dětská (60×120 cm)

více

Vaše svatba

od 80.000 Kč / 2 noci

Počet osob: 50 i více

Vezměte si svoji lásku na Hojšíně. Celá Samota, louky, lesy i západ slunce nad rybníkem budou jen Vaše. Dětí a psů si vezměte kolik chcete, po desáté večer veselku přesuňte dovnitř, abyste nerušili divou zvěř v lesích a domorodce za kopcem. Svatební obřad si snadno domluvíte na Obecním úřadě v Voticích.

Co pro Vás máme připraveno: k dispozici máte veškeré vybavení Samoty. Na louce si můžete postavit stanové městečko a na parkovišti zaparkovat celý svatební konvoj.

Co si musíte zařídit sami: jídlo, pití, muzikanty, hudební aparaturu, výzdobu a to, bez čeho by vaše svatba nebyla dokonalá

Vratná kauce: 30 000 Kč pro případné nehody

Velikost: 800 m2 + celá louka

Kontaktujte nás

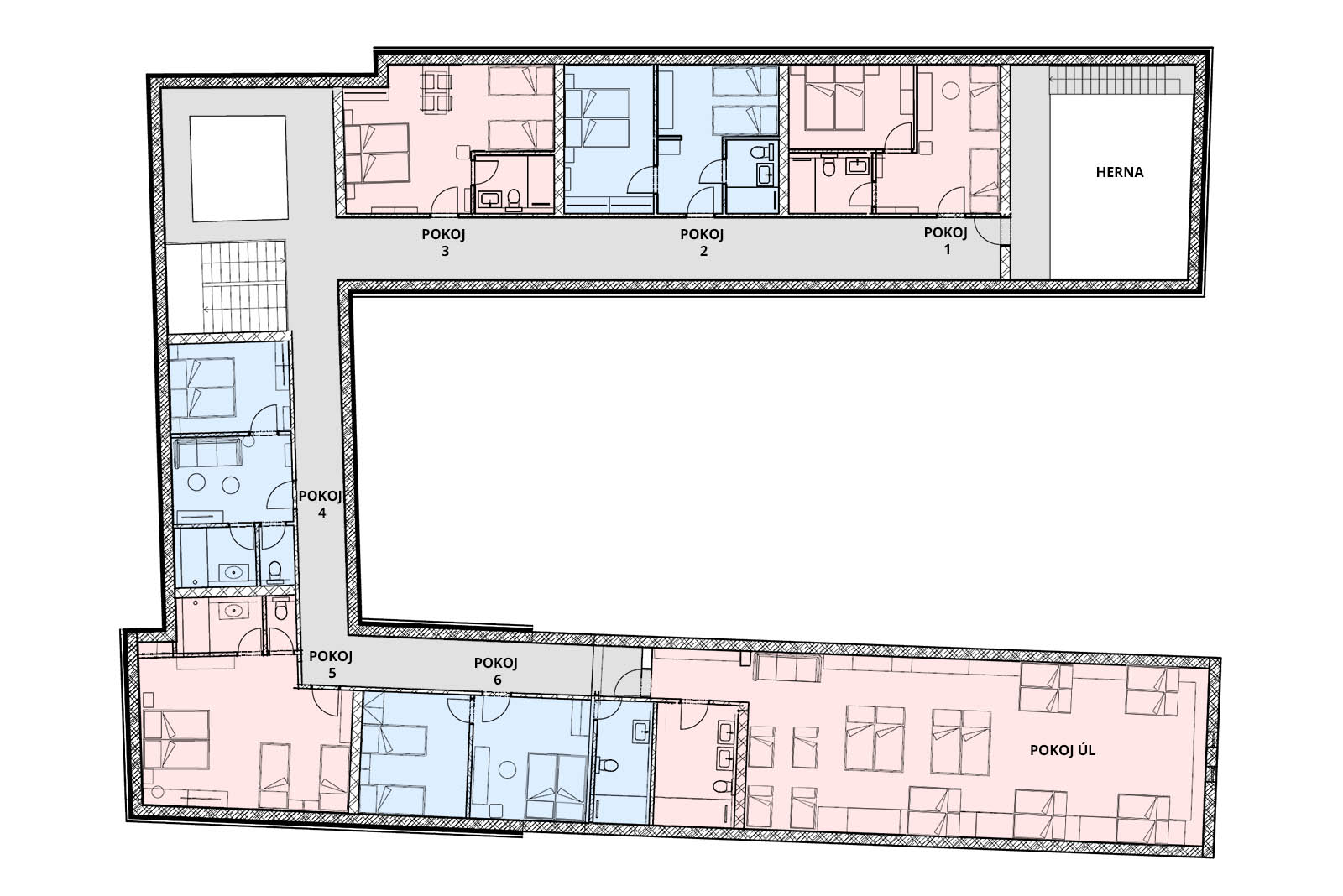
Pokoj 1 - 6

od 2.600 Kč / noc

Počet osob: 4

Suite s ložnicí, obývacím prostorem a vlastním příslušenstvím. Váš ranní úsměv bude patřit rybníkům a dvoru.

Příslušenství: koupelna se sprchou/vanou a WC

K dispozici: společná plně zařízená vnitřní a venkovní kuchyně, jídelna, společenská místnost s barem, dětská herna, terasa, TV, audio systém Sonos, wi-fi, gril, louka, rybník, koupací jezírko, travnaté volejbalové hřiště, dětské hřiště

Velikost: 28 - 35 m2

Typ postele: 1× manželská (180×200 cm)
2× jednolůžko (90×200 cm)
(na pokoji č. 4 a 6 pohovka pro dva 140×200 cm)

více

Dětský pokoj - úl

od 5.700 Kč / noc

Počet dětí: 10+8

Tohle je rozhodně náš největší pokoj. Ale pozor! Všechny postele jsou pro děti max. do 150, resp. do 110 cm.

Příslušenství: velká koupelna s dětskými toaletami

K dispozici: společná plně zařízená vnitřní a venkovní kuchyně, jídelna, společenská místnost s barem, dětská herna, terasa, TV, audio systém Sonos, wi-fi, gril, louka, rybník, koupací jezírko, travnaté volejbalové hřiště, dětské hřiště

Velikost: 94 m2

Typ postele: 10× dětská (80×160 cm)
8× dětská (60×120 cm)

více

Mapy

Půdorys přízemí

Půdorys patra

Plán celého areálu

Výlety po okolí

Lom v miličíně

Krásný zatopený lom s průzračnou vodou, pár set metrů od Miličína pod křížovou cestou a vrchem Kalvárie. Doporučujeme hlavně v létě.

Monínec

Nově vybudovaný skiareál s plným komplexem služeb pro zimní i letní sporty. Takže vyražte kdykoliv.

Kraj blanických rytířů

Pěší i cyklistické výlety, řada památek a míst s odkazem naše dějiny - toulky malebnou českou krajinou pod památnou horou Blaník. Zajímavých míst je mnoho, tipy na výlety najdete zde. Nechte se inspirovat.

Poštovna ze sněžky

Nejstarší česká poštovna, která léta stávala na vrcholku Sněžky. Musela však ustoupit nové. A tak jsme ji s kamarády rozebrali trám po trámu, hřebík po hřebíku a přenesli ji na Javorovou skálu u Monínce. Najdete ji u horní stanice lanovky na Monínci.

Tábor

Odpočinek v městském stylu. Zatoulejte se labyrintem uliček, objevte milá zákoutí kontrastující se syrovostí hradeb bývalého husitského města.

Konopiště

Býval to hrad, teď je to zámek. A nezklame vás. Připravte se na spoustu zábavy, ať už milujete historie, umění, kytky, zvířátka, procházky v parku nebo medvěda ušatého.

Golf čertovo břemeno, Konopiště, Pyšely

Milujete golf, chcete se ho naučit, nebo jenom koukat na dokonalý trávník? Vyberte si ze třech golfových lokalit nebo každý den vyzkoušejte jinou.

Toulava

Prý je to turistická oblast. Ale pro nás jsou to místa s chalupami jako z pohádky a utajenými lučními stezkami, které ukrývají staré keltské kameny.

Minipivovar vítek

Hledali jsme a našli. Spojení dobrého piva a jídla, umění a historie přímo vybízí ke středečnímu výletu.

Kontakt

Jakou adresu má samota

Hojšín 4, 257 86 Neustupov

49.5833339N, 14.7145836E

samota@hojsin.cz

+420 737 628 529

Kde je samota

Zobrazit na Mapy.cz